LIVING CUBE 
  
 
 
 
  LIVING CUBE
 
  
 
 
90-2 2G
 
    
 Ausstattung 
 
 Ausstattung
 
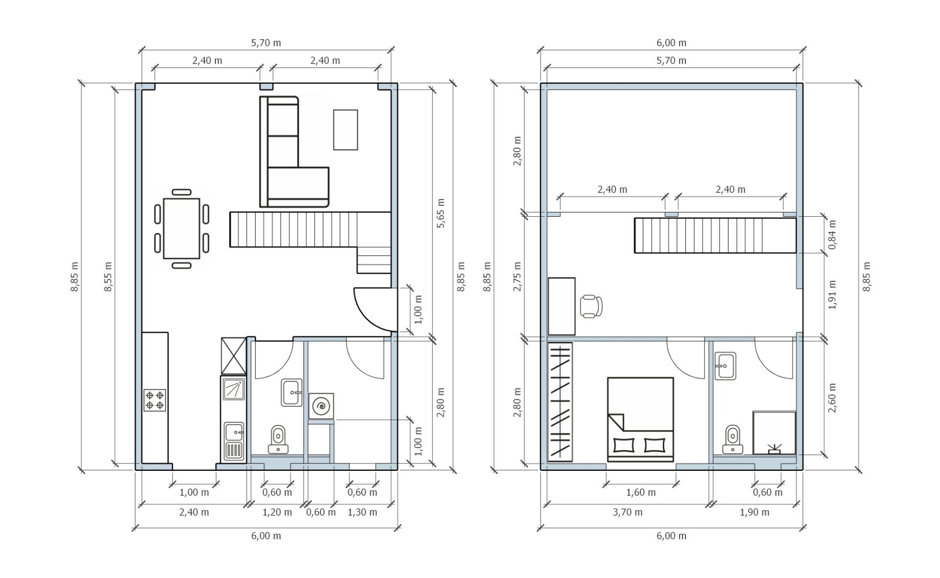
 •	Wohnfläche:  ca. 84 m²
- UG: Küche mit Essbereich, Wohnzimmer, HWR, Gäste WC
- OG: Badezimmer, Schlafzimmer, Büro
- Andere Raumaufteilungen möglich.
•	Stellfläche: : B/H/T: 9,00 /5,8 / 6,00 m
•	Nutzung: Einfamilienhaus, Tinyhouse, Ferienhaus, Studentenwohnung, Monteurunterkunft, Anbau, Wohnraumverdichtung 
•	Wohnraum: Wände und Decke in Trockenbauweise mit Aluminium Ständerwerk und Gipskartonplatten, gespachtelt und weiß gestrichen. 
•	Fußboden mit hochwertigem EGGER Green Tec Laminat, mit höchster Abriebfestigkeit und Wasserabweisend. Für den Einsatz in Objekten (Hotel/Gaststätten) und Business (Büro) geeignet. Langlebig und nachhaltig. Rundum Fußleisten
• Dämmung: In Verbindung mit einer Luft-Wärmepumpe erfüllen unsere Cube`s den Energie-Effizienzstandard nach KFW 55
•	Umluftanlage für ein gutes Raumklima und zur Vermeidung von Kondenswasser. Wahlweise auch mit Wärmerückgewinnung und Pollenfilter
•	Fenster: Marken Kunststofffenster mit Dreifachverglasung 
•	Fassade: Lärche Rombusprofile, oder Putz Weiß mit Einfassung an Dach und den Ecken mit Aluminium Kantenprofilen
•	Elektrik: Sicherungskasten, ausreichend Lichtschalter und Steckdosen an den richtigen Stellen, sowie die Deckenbeleuchtung mit modernen LED Paneelen

 
  
  
  
  
  
  
  
  
  
  
  
  
  
  
  
 







