LIVING CUBE
LIVING CUBE
146-1 2G
Ausstattung
Ausstattung
Entdecke Dein Traumhaus – unser KfW 40 Niedrigenergie Modulhaus! Mit 146 qm Bruttofläche, verteilt auf zwei Etagen, bietet dieses ökologisch gebaute Haus mit Holzdämmstoffen und einer Putz/Holzfassade nicht nur Komfort, sondern auch Stil. Sicher dir Zinsgünstige Darlehen Bezugsfertig ab 2100€/m².
Dieses Haus bietet Dir:
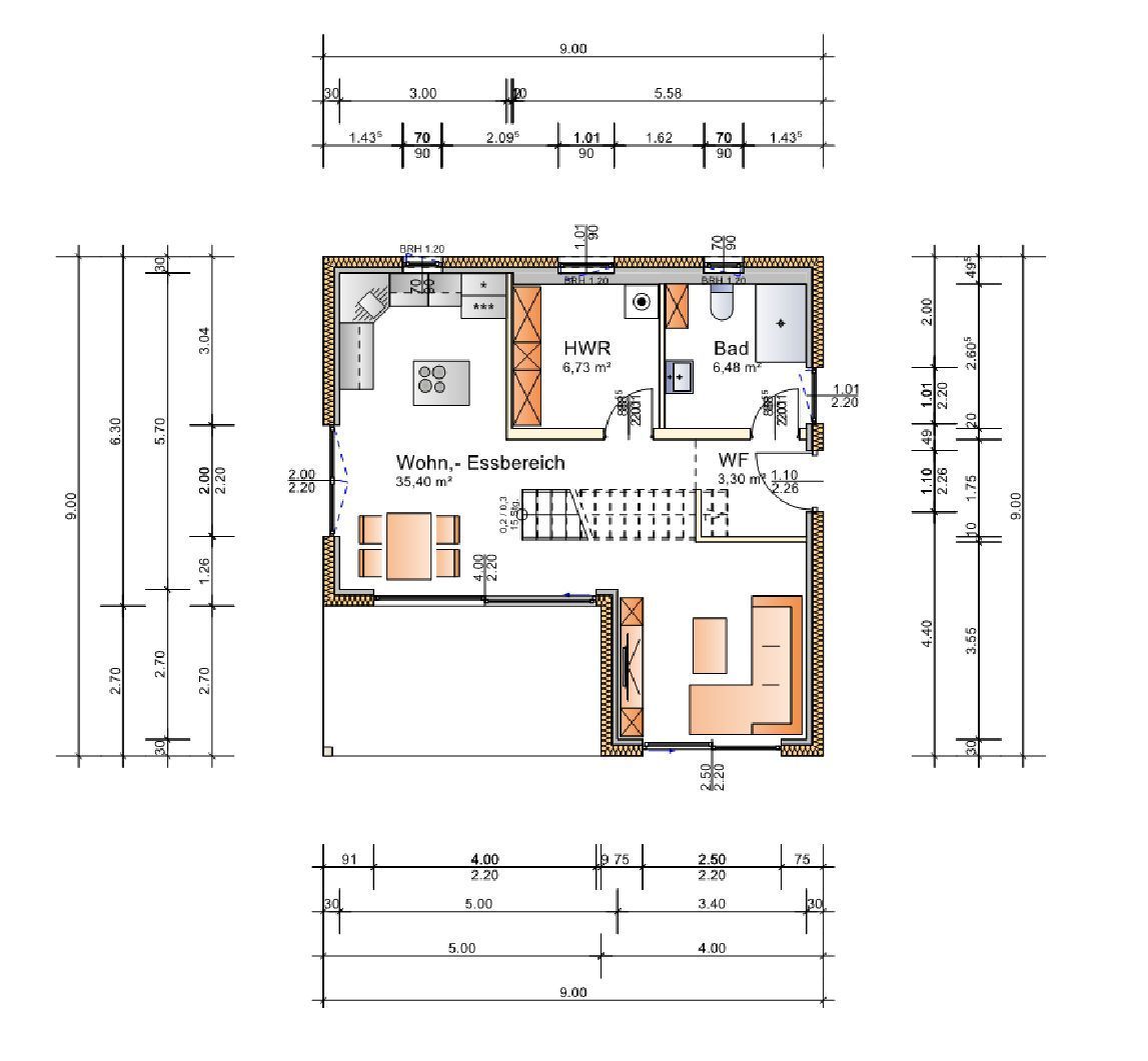
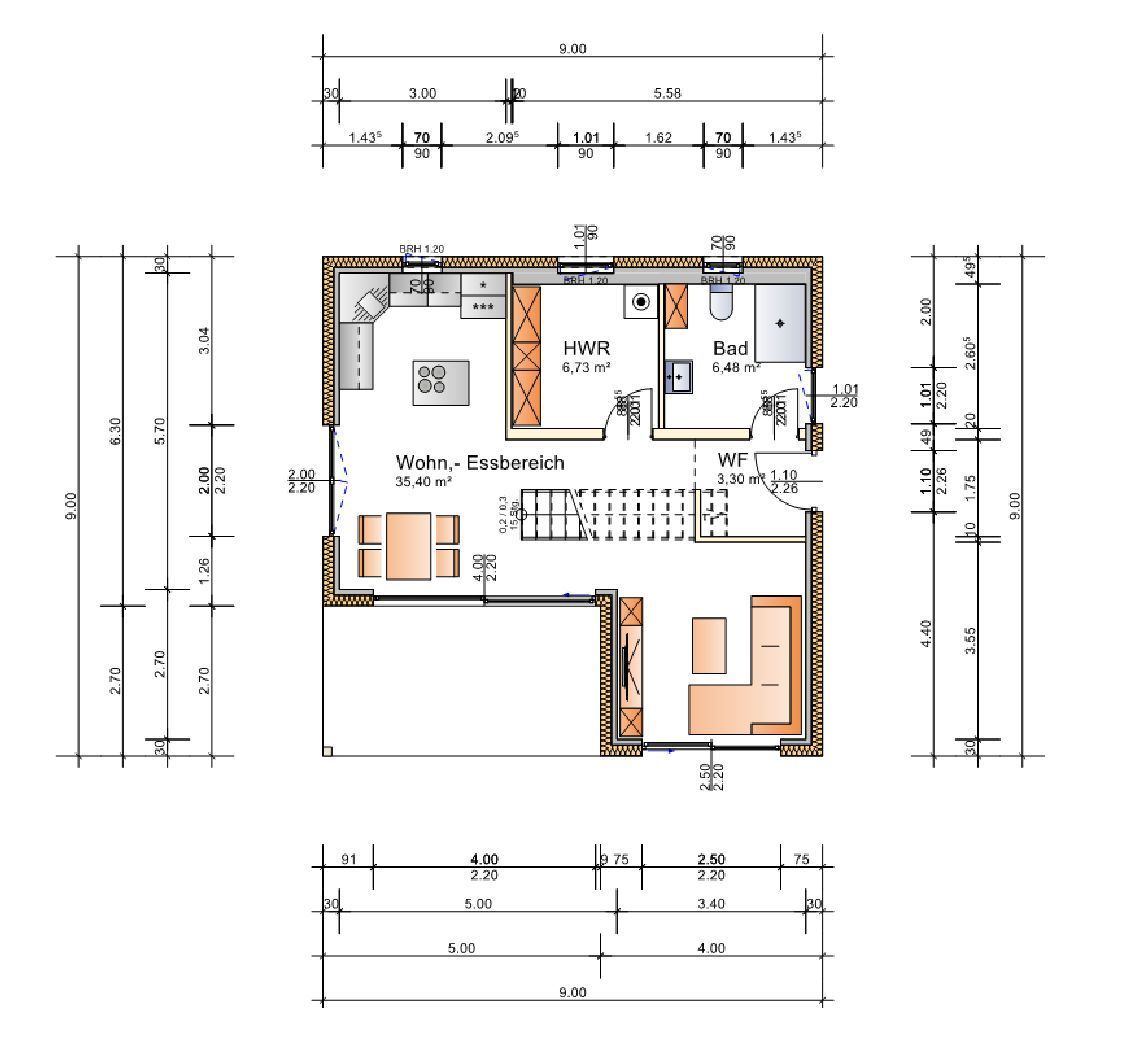
Einen Wohn-Essbereich
1 Hauswirtschaftsraum
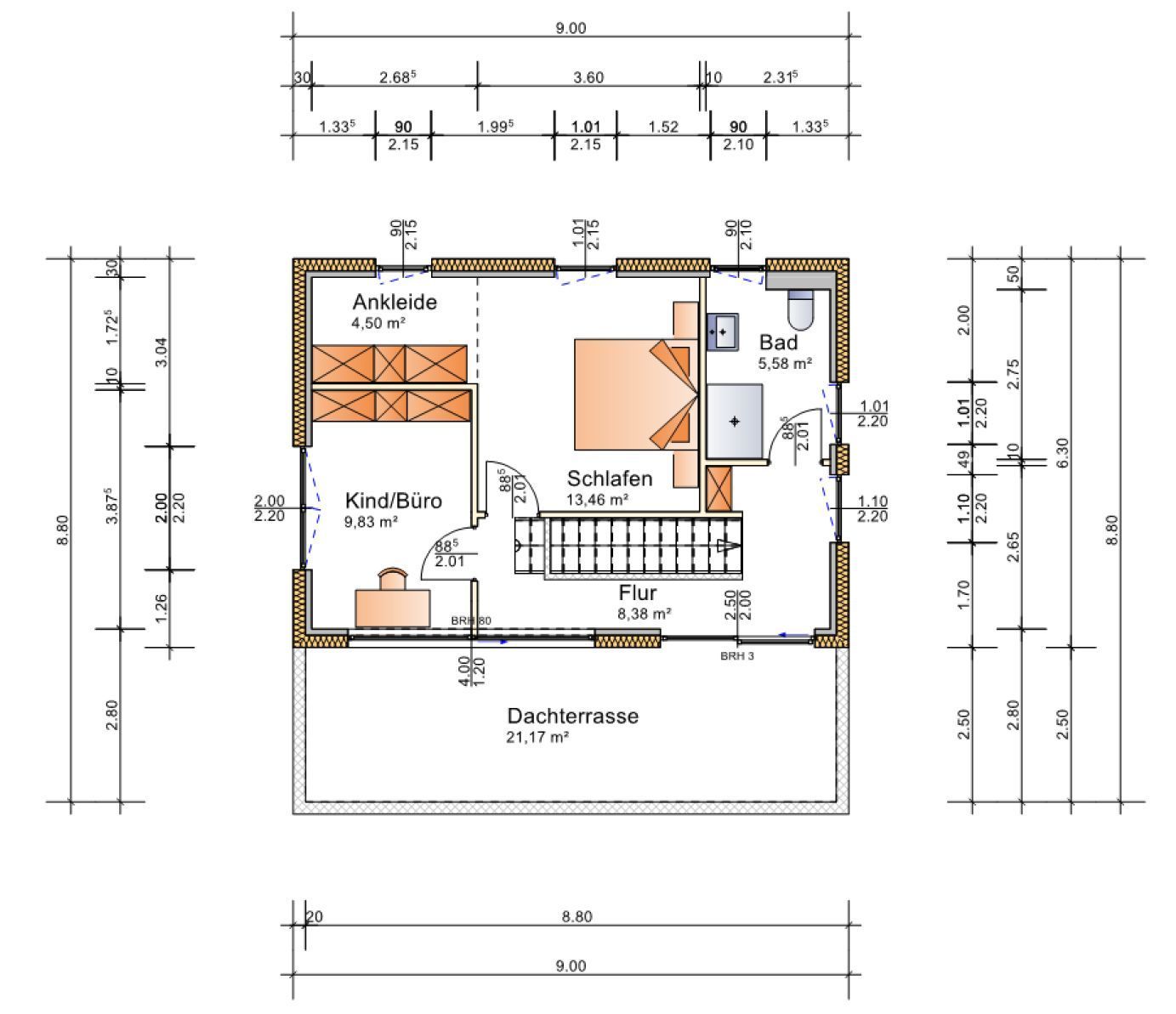
2 Schlafzimmer/Büro
1 elegantes Ankleidezimmer
2 moderne Badezimmer
Die Grundrisse sind Beispiele. Wir bauen jedes Haus individuell in der Größe und den Grundrissen nach deinen Wünschen.
Beispiel Grundriss















