LIVING CUBE
LIVING CUBE
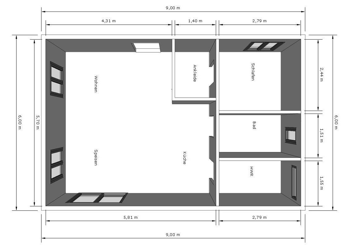
54-1 1G
Ausstattung
Ausstattung
• Wohnfläche: 54m³
• Maße Innenraum: B/H/T:8,7 / 2,5 / 5,7m
• Stellfläche: : B/H/T: 9,00/ 2,70 / 6,00m
• Nutzung: Tinyhouse, Ferienhaus, Gartenhaus, Studentenwohnung, Monteurunterkunft, Anbau, Wohnraumverdichtung z.B. auf Terrassen und Dächer
• Wohnraum: Wände und Decke in Trockenbauweise mit Aluminium Ständerwerk und Gibskartonplatten, gespachtelt und weiß gestrichen.
• Fußboden mit hochwertigem EGGER Green Tec Laminat, mit höchster Abriebfestigkeit und Wasserabweisend. Für den Einsatz in Objekten (Hotel/Gaststätten) und Business (Büro) geeignet. Langlebig und nachhaltig. Rundum Fußleisten
• Dämmung: In Verbindung mit einer Luft-Wärmepumpe erfüllen unsere Cube`s den Energie-Effizienzstandard nach KFW 55
• Umluftanlage für ein gutes Raumklima und zur Vermeidung von Kondenswasser
• Badezimmer: B/T: 1 ,5/2,8m mit Dusche, WC, Waschtisch mit Armatur
• Fenster: Marken Kunststofffenster mit Dreifachverglasung
• Fassade: Lärche Rombusprofile, oder Weiß in Putzoptik mit Einfassung an Dach und den Ecken mit Aluminium Kantenprofilen
• Elektrik: Sicherungskasten, ausreichend Lichtschalter und Steckdosen an den richtigen Stellen, sowie die Deckenbeleuchtung mit modernen LED Paneelen










