LIVING CUBE 
  
 
 
 
  LIVING CUBE
 
  
 
 
126-2 2G
 
    
 Ausstattung 
 
 Ausstattung
 
• 126 m2
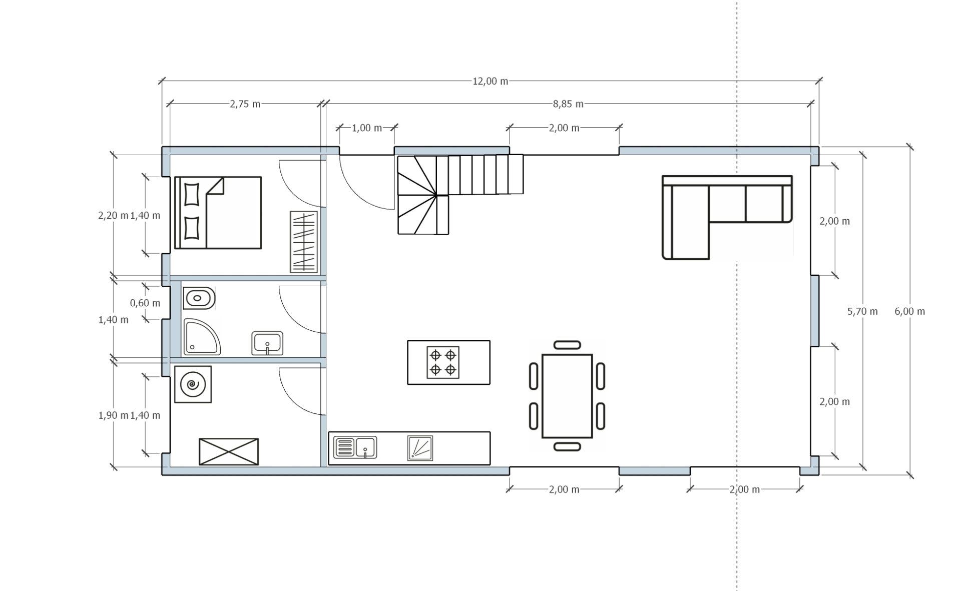
- Unten: Großer Wohn,- und Essbereich mit Küche, WC, HWR, Kinder/Gästezimmer,
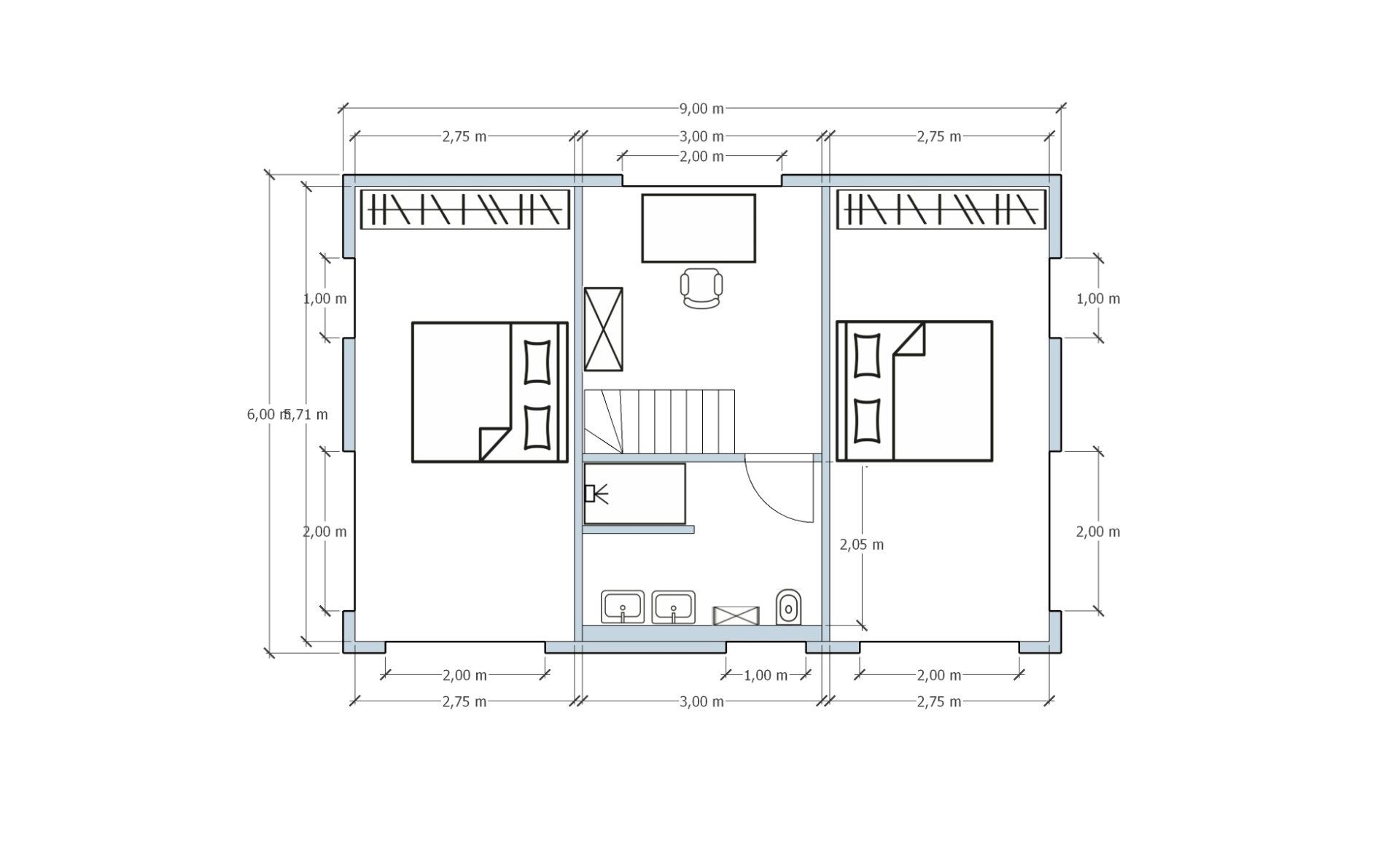
- Oben: 2 Schlafzimmer, Büro, Badezimmer
- Die Inneneinteilung der Räume ist variabel und wird individuell nach Kundenwusch geplant.
- Niedrigenergiehaus nach KFW 55 Effizienzstandard.
•	Stellfläche: : B/H/T:  ca. 12 / 5,8 / 8 m
•	Nutzung: Wohnhaus, Ferienhaus
Beispiel Grundriss UG
Beispiel Grundriss OG

 
  
  
  
  
  
  
  
  
  
  
  
  
  
  
  
  
  
  
  
  
  
  
  
  
  
  
  
  
  
  
  
  
  
 




