LIVING CUBE 
  
 
 
 
  LIVING CUBE
 
  
 
 
26-1 1G
 
    
 Ausstattung 
 
 Ausstattung
 
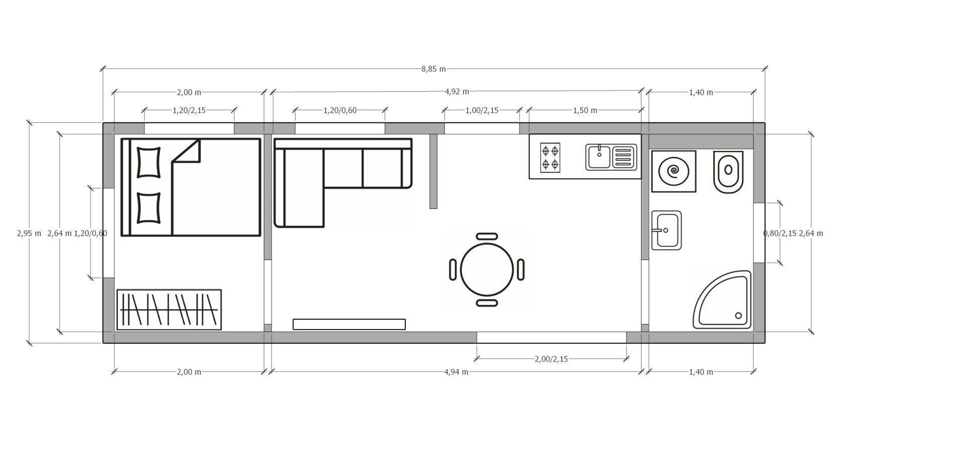
•	Wohnfläche: 26m³
•	Stellfläche: : B/H/T: 8,85 / 2,85 / 2,95m
•	Nutzung: Tinyhouse, Ferienhaus, Gartenhaus, Studentenwohnung, Monteurunterkunft, Anbau, Wohnraumverdichtung z.B. auf Terrassen und Dächer
• Wohnraum: Wände und Decke in Trockenbauweise mit Aluminium Ständerwerk und Gibskartonplatten, gespachtelt und weiß gestrichen. 
• Fußboden mit hochwertigem EGGER Green Tec Laminat, mit höchster Abriebfestigkeit und Wasserabweisend. Für den Einsatz in Objekten (Hotel/Gaststätten) und Business (Büro) geeignet. Langlebig und nachhaltig. Rundum Fußleisten
• Dämmung: In Verbindung mit einer Luft-Wärmepumpe erfüllen unsere Cube`s den Energie-Effizienzstandard nach KFW 55
• Umluftanlage für ein gutes Raumklima und zur Vermeidung von Kondenswasser. Wahlweise auch mit Wärmerückgewinnung und Pollenfilter
• Fenster: Marken Kunststofffenster mit Dreifachverglasung 
• Fassade: Sibirische Lärche Rombus Leisten
• Elektrik: Sicherungskasten, ausreichend Lichtschalter und Steckdosen an den richtigen Stellen, sowie die Deckenbeleuchtung mit modernen LED Paneelen

 
  
  
  
  
  
  
  
  
  
  
  
  
  
  
  
  
  
  
  
  
  
  
  
  
  
  
  
 







