LIVING CUBE
LIVING CUBE
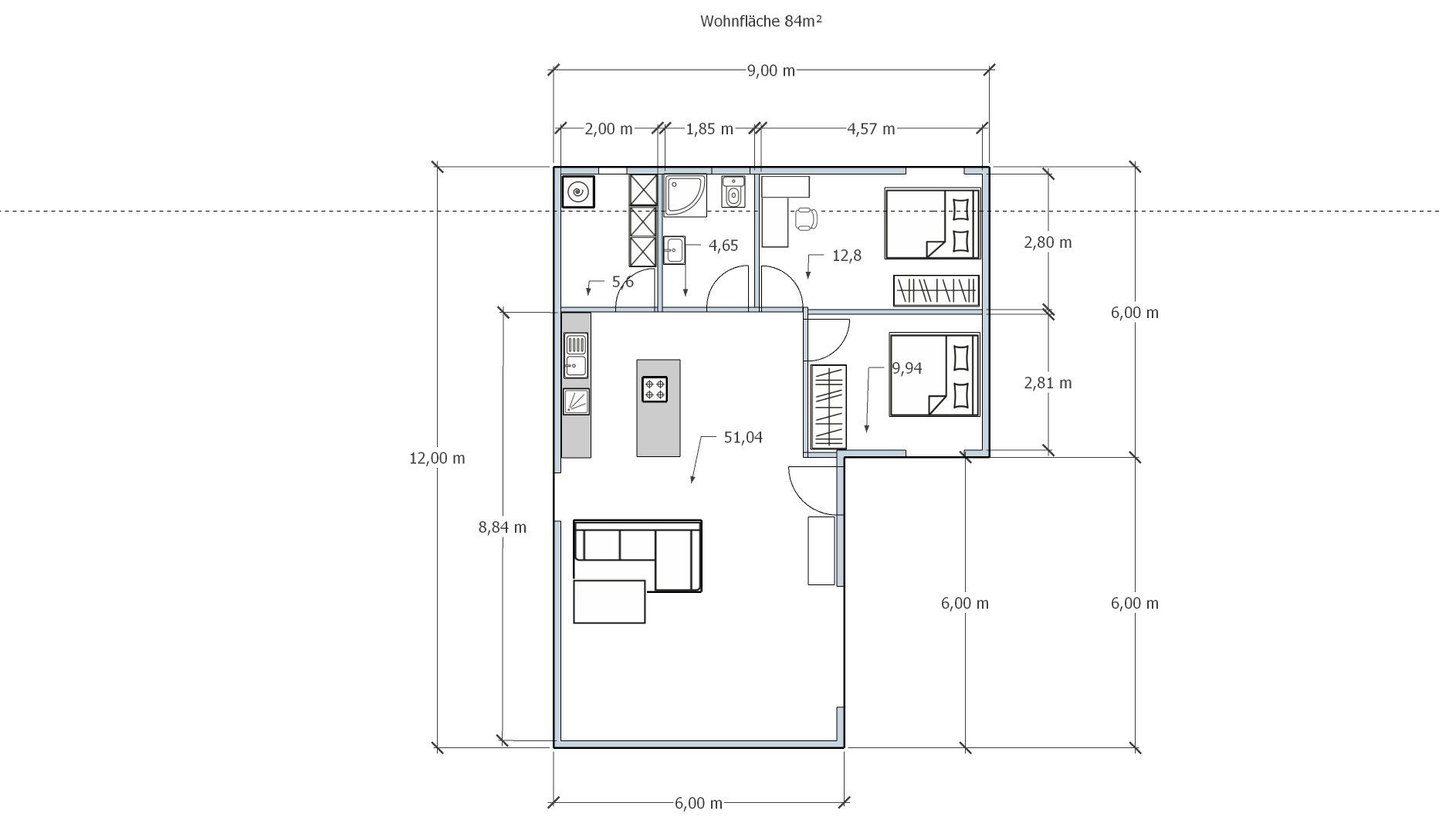
90-1 1G
Ausstattung
Ausstattung
• Wohnfläche: ca. 84 m²
- Küche mit Wohn,- und Essbereich, 2 x Schlafzimmer, Badezimmer, Hauswirtschaftsraum
- Andere Raumaufteilungen möglich.
• Stellfläche: : B/H/T: 9,00 /2,9 / 12,00 m
• Nutzung: Einfamilienhaus, Ferienhaus,
• Wohnraum: Wände und Decke in Trockenbauweise mit Aluminium Ständerwerk und Gipskartonplatten, gespachtelt und weiß gestrichen.
• Fußboden mit hochwertigem EGGER Green Tec Laminat, mit höchster Abriebfestigkeit und Wasserabweisend. Für den Einsatz in Objekten (Hotel/Gaststätten) und Business (Büro) geeignet. Langlebig und nachhaltig. Rundum Fußleisten
• Dämmung: In Verbindung mit einer Luft-Wärmepumpe erfüllen unsere Cube`s den Energie-Effizienzstandard nach KFW 55
• Umluftanlage für ein gutes Raumklima und zur Vermeidung von Kondenswasser. Wahlweise auch mit Wärmerückgewinnung und Pollenfilter
• Fenster: Marken Kunststofffenster mit Dreifachverglasung
• Fassade: Lärche Rombusprofile, oder Putz Weiß mit Einfassung an Dach und den Ecken mit Aluminium Kantenprofilen
• Elektrik: Sicherungskasten, ausreichend Lichtschalter und Steckdosen an den richtigen Stellen, sowie die Deckenbeleuchtung mit modernen LED Paneelen









